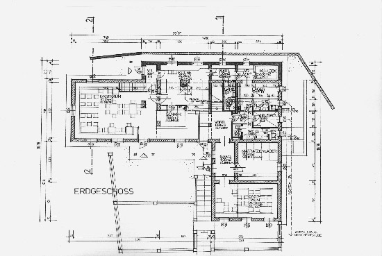
Pläne

Ansicht

Geschosse